40
$2,400 Rent
Listed 8 hours ago
17 Maplestone Avenue
· 3
· 2
· 0
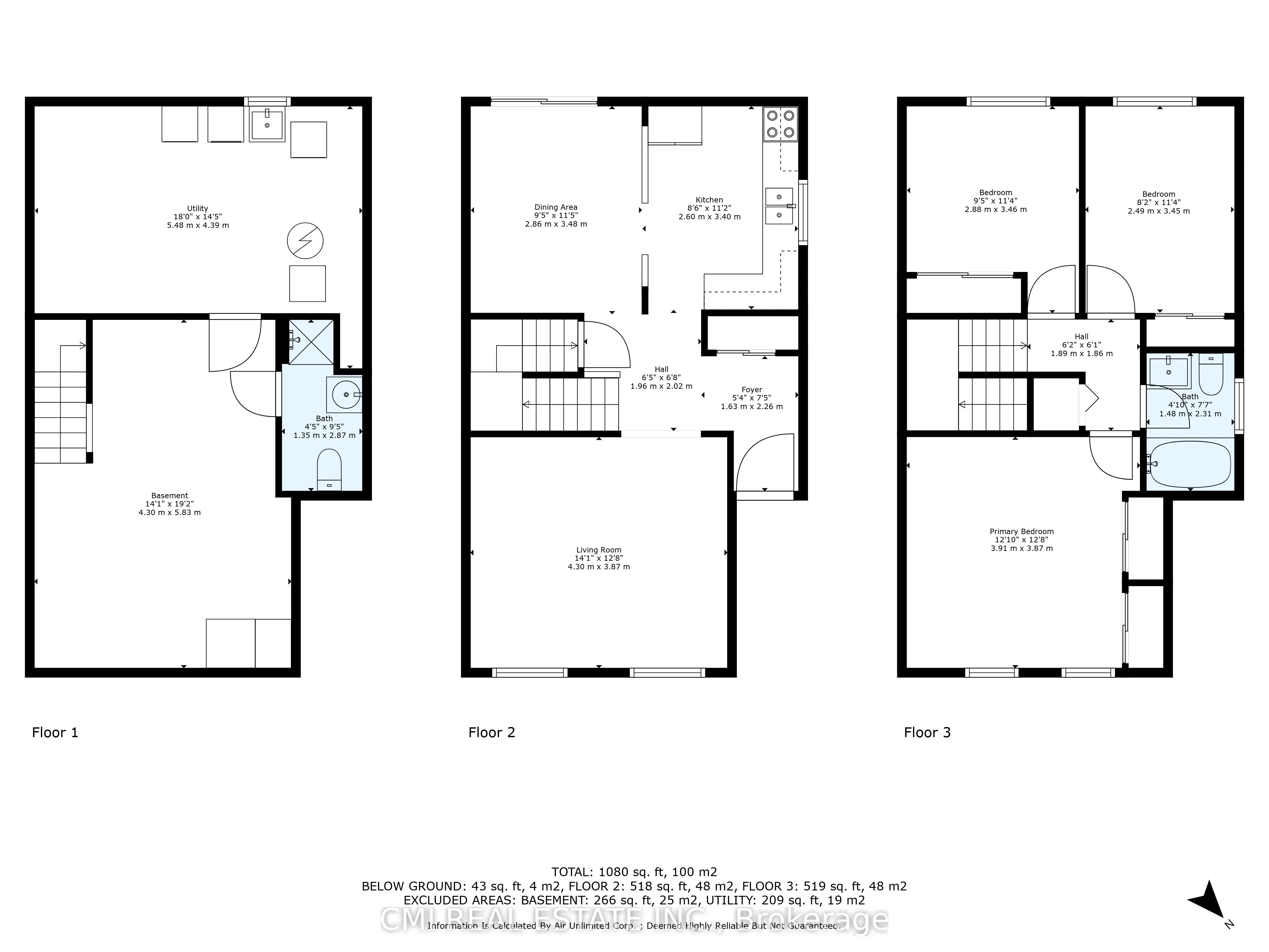
· 1100-1500
Listing History
Buy/Sell/Terminated/Expired listing history for 17 Maplestone Avenue
Key Facts
Key facts for 17 Maplestone Avenue
Property Type
House, 2-Storey
Parking
None 0 garage, 3 parking
MLS #
X12454473
Size
1100-1500 sqft
Basement
Full,Partially Finished
Listed on
2025-10-09
Lot size
24 x 172.96
Tax
-
Days on Market
1
Approximate Age
31-50
Maintenance Fee
-
Description
Semi-detached in PRIME location featuring 3 bed, 2 full bath approx 1200sqft of living space situated on a deep pie lot on a quiet cul-de-sac. Long driveway no sidewalk provides ample parking. Step into the bright center foyer opening to large open living room O/L the front yard. Venture to the back... of the house to find eat-in modern kitchen w/ breakfast bar adjacent to the formal dining room W/O to rear patio. Upper level offers 3-spacious family sized bedrooms & 1-4pc bath. Full Bsmt partially finished w/ large rec-space (can be used for guest accommodation, family room, office, or in-law suite) w/ full 3-pc bath & utility space. HUGE fenced backyard surrounded by mature trees providing privacy ideal for growing families, entertainers, hosts, & pet lovers. Fully renovated! Ready to move in
Similar Properties (No results)
Courtesy of: CMI REAL ESTATE INC.